3-комнатная квартира , Минск

597891BYN
Код объекта: 3938372
Обновлено: 2026-01-24
Номер договора: 176/4 от 2025-11-05
Местоположение
Населенный пункт: г. Минск
Район города: Центральный район
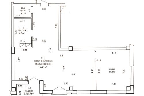
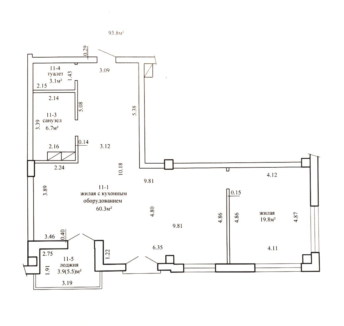
Параметры
Тип дома: каркасно-блочный
Высота потолков: 3.5
Этаж / этажность: 6 / 7
Площадь о/ж/к: 93.8 / 80.1 / - м²
Год постройки: 2025
Ремонт: без отделки
Балкон: лоджия
Сан/узел: раздельный
Условия сделки: чистая продажа
Контактная информация
Виктор Заруцкий
Агент по недвижимости

+375 (29) 685-86-87

Поделиться в соц. сетях
Объект на карте